用戶名: 密碼: 忘記密碼
設為首頁 - 黃金展位 -   企業注冊   個人注冊
中國振動機械行業第一網絡媒體
在線咨詢網站客服
我要搜索:
熱門搜索: 振動篩 谷物清選機 破碎機 旋振篩 直線篩 篩網
超聲波振動篩 振動電機 振動給料機 輸送機 粉碎機 提升機
本站首頁 | 我要采購 | 我要銷售 | 電子樣本 | 品牌企業 | 企業招聘 | 振動機械書籍 | 行業人物 | 市場分析 | 行業設備 | 政策法規 | 企業新聞 | 振動機械 | RSS訂閱
寬槽體振動給煤機GZGK 價格
產品名稱:  寬槽體振動給煤機GZGK 寬槽體振動給煤機GZGK
價格:  1.5萬元元/臺
原價:   元/臺
發布日期:  2024-09-19
 新鄉市華維機械設備有限公司
聯系人:  李經理
聯系電話:  0373-2517805
傳真:  0373-2517805
手機:  15037380577
公司地址:  新鄉市工業園
郵箱:  xxhwjixie@163.com
寬槽體振動給煤機GZGK 信息描述

寬槽型振動給煤機(GZGKM系列)

一、產品簡介:
  GZGKM系列寬槽型振動給煤機是選煤廠振動篩或跳汰機前給料的一種節能型給煤機。該機由新型振動電機直接驅動、結構簡單緊湊、便于窄小空間布置安裝;給煤連續均勻,配用電控箱,可實現給煤量的任意調節。本機也廣泛應用于煤炭、冶金、建材、化工、輕工等行業的篩前給料或者有布料要求的工藝中。
二、技術參數:


型號參數GZGKM-120GZGKM-160GZGKM-180GZGKM-200GZGKM-220GZGKM-280GZGKM-320
給料機寬度(mm)1200160018002000220028002300
給料粒度(mm)0-1200-1200-1200-1200-1200-1200-120
給料量(t/h)100-150100-175100-20015-225150-250200-300200-350
功率(kw)2×1.502×1.502×2.202×2.202×2.202×3.702×3.70
電機型號YZO-20-6YZO-20-6YZO-30-6YZO-30-6YZO-30-6YZO-50-6YZO-50-6
振頻(Hz)16161616161616
振幅(mm)4-64-64-64-64-64-64-6
安裝傾角0°-10°0°-10°0°-10°0°-10°0°-10°0°-10°0°-10°
總重(kg)80092012001370148018001970

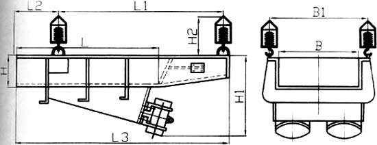
三、外形圖:

四、外形尺寸:


型號參數GZGKM-120GZGKM-160GZGKM-180GZGKM-200GZGKM-220GZGKM-280GZGKM-320
B1200160018002000220028003200
B11250165018502050225028503250
H300300300300300300300
H190090095095095010301030
H2-550-550-600-600-600-700-700
L1600160016001600160016001600
L11900190019001850185018501750
L2250250250300300300400
L32200220022002200220022002200


新鄉市華維機械設備有限公司簡介

新鄉市華維機械設備有限公司是生產振動篩分、給料設備的專業企業,公司坐落于新鄉市工業區,濱臨京廣鐵路、107國道,距省會鄭州70Km,地理位置優越,交通、通訊設施便利。是一家集振動設備、振動源研發、生產、銷售、服務于一體的現代化企業。           

公司擁有豐富的振動篩分設備生產經驗,完整吸收國內外同類產品的先進技術,堅持科技創新,以人文為中心,為客戶量身定制一流的高品質的機械設備。 公司為發展科研積極與屬地高校合作,建有振動機械仿真實驗場所和完善的檢測系統,對生產出的系列產品進行物理和機械性能測試,使用戶訂制的設備在品質方面無后顧之憂。

  公司現主打產品有振動篩、直線振動篩、旋振篩、圓振動篩、礦用振動篩、重型篩等篩分設備;斗式提升機、垂直提升機、螺旋輸送機、皮帶輸送機、、振動給料機、電磁給料機等輸送給料設備及振動電機、振動彈簧、篩網、篩框橡膠球等多種振動設備相應配件。

  我們的經營理念是以質量求生存,以信譽謀發展。隨著公司不斷壯大與發展,我們將以真摯和熱情竭誠歡迎各界朋友的光臨,待與廣大客戶攜手合作,共謀發展,實現雙贏。

網站首頁 | 網站簡介 | 網站地圖 | 法律聲明 | 聯系我們 | 服務項目 | 篩分通會員 | 廣告合作 | 投訴建議 | 友情鏈接 | 申請友情鏈接
全國統一客服熱線:0371-56727233 振動篩分交流群① 58519197(滿)② 107250318(滿) ③ 87177774(未滿) ④ 35419702(未滿)
© 2007- 中國振動機械網 版權所有 豫ICP備11007950號 增值電信業務經營許可證:豫B2-20190850
客服郵箱: 本站法律顧問:河南光法律師事務所  
中國振動機械網客服:871792307 1321379918 技術:中國振動機械網技術支持:497398702