振動給料機又稱振動喂料機。振動給料機在生產流程中,可把塊狀、顆粒狀物料從貯料倉中均勻、定時、連續地給到受料裝置中去。廣泛用于冶金、煤礦、選礦、建材、化工、磨料等行業的破碎、篩分聯合設備中。常見的振動給料機主要有電磁振動給料機和電機振動給料機兩種。而今天我們要介紹的創新系列振動給料機就是由昕芙旎雅株式會社(原神鋼電機株式會社)研發的防水型小型電磁振動給料機。
對于顆粒材料的處理,昕芙旎雅株式會社的小型振動給料機機是最高效、清潔、可靠的。使生產環境衛生的可洗小型給料機。
小型防水振動給料機機特點:
可洗驅動裝置。
不用上蓋和噴漆而免受污染。
只包含金屬探測零件。
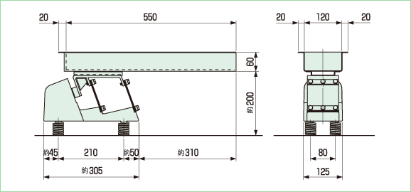
防小振動給料機規格比較:
| 型號 |
CF-2 |
WCF-2 |
| 蓋 |
樹脂蓋 |
無蓋 |
| 槽重 |
2∼4.5kg |
2∼4.5kg |
| 標準槽尺寸 |
120×550×60(mm) |
120×550×60(mm) |
| 最大行程 |
1.6mm |
1.6mm |
| 振動頻率 |
50∼70Hz |
50∼70Hz |
| 適用控制器 |
C10-1VCF |
C10-1VCF(*1) |
| 電壓 |
100/200V |
200V(*1) |
| 電流 |
1.0/0.5A |
0.5A |
| 重量 |
13kg |
16.5kg |
- *1當電源是AC100V 時,需要1C10-TR的變壓器。

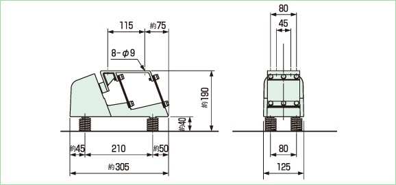
防水振動給料機結構圖

無蓋平底有槽標準型防水振動給料機

防水振動給料機驅動裝置
昕芙旎雅株式會社(原神鋼電機株式會社)電磁振動給料機、橡膠彈簧給料機特點綜述:
振動給料機 VIBRATING FEEDERS
■電磁振動給料機
供料能力的計算 規格尺寸
CF型 F平底開放型 1 2 F帶出口型
F帶蓋出口型 F頂部驅動型
■橡膠彈簧振動給料機 RUBBER SPRING FEEDERS
RFH型 結構原理 規格
RFH- 10A-60A RFH-85B RFH-160B-1500B
■控制器
電磁振動用控制器 橡膠彈簧振動用控制器
■振動篩
RGH型 結構原理 尺寸規格
RV型 結構原理 尺寸規格
GF型 結構原理 尺寸規格
特殊型 1 2 振動馬達的安裝
直線驅動篩LDS型 VIBRATING SCREEN
結構原理 外觀尺寸
主要用途:
1. 礦石、煤炭、砂土、砂石、碎石等的塊料處理
2. 化學工廠、樹脂工廠中的粉粒體搬運
3. 食品、藥物等粉末原料的搬運
產品特點及技術說明:
電磁振動給料機由運送物料的料槽、振動源的電磁鐵及彈簧板組成。利用控制器產生的脈沖電磁鐵勵磁后,料槽就被快速拉向后下方。因為其下降速度很快,所以物料就會浮在空中,并在重力作用下掉落到料槽。接著,在彈簧板的彈力作用下,料槽又被推回到上前方。這時使料槽上的物料向前方移動。該作用以每分鐘3000次或3600次的高速度反復進行,使料槽上的物料平滑移動,所以不會引起物料破損。
橡膠彈簧給料機是將不衡旋轉所產生的強力振動源和工振用的橡膠彈簧有效的組合起來的一種振動給料機。采用了共振方式,所以用較小的驅動力即可發揮出很大的振動效果。另外,在運轉中能夠方便地調整給料量,并能瞬時停機,所以可作為稱量用給料機使用。其結構由運送物料的料槽、產生振動的驅動部以及將它們結合在一起的共振用的橡膠彈簧組成。驅動部的不平衡塊旋轉所產生的橢圓振動會對料槽上的物料產生和直線振動一樣的效果。因此,能夠快速地運出、給給大量的砂和砂土等物料。
神鋼電機(現昕芙旎雅株式會社)作為日本振動設備頂級生產廠家,制造振動給料機、振動輸送機、圓盤振動給料器和振動馬達等各種振動設備,受到了用戶的極高評價。其中,振動給料機是集中了神鋼電機技術力量的中心產品, 可以切分也微細的粉粒體、塊體和砂土等,用途十分廣泛。神鋼電機的產品種類豐富,其中包括電磁給料機、橡膠彈簧給料機,以及格篩給料機等,使用這此設備可以達到生產工藝的合理化,提高作業效率,并提高生產率。
產品特點:
1. 能方便地自動控制給料量
在運轉中只需旋轉控制器的旋鈕,即可自由靈活地調節給料量。同時,還可以通過與計量器、流量表、溫度計及電動機的負荷等組合,檢出其變動來簡便地對給料量進行自動控制。尤其是與計量器組合,作為間歇式機器,已經大量使用于原料的配制。
2. 可處理的物料范圍廣泛
振動給料機能處理的物料范圍很廣,從粉末到大塊料,對所有物料均可高效地進行運送,給料。同時還適用于高溫物料或麿損性較大的物料的給給。另外,我們還提給大型機器,從運送能力來說,能夠每小時給給6100噸鐵礦石。
3. 維護費用低
因為利用了共振原理,所以耗電很少,極為經濟。結構簡單,所以維護和檢修無需很多精力。同時,采用了振動方式,所以料槽表面和運送物料之間磨擦很少,即使長期使用,料槽的磨損也很小。
4. 最適合于特殊作業用途
能夠方便地裝備其它構件,如在處理容易飛散的粉末物料時,可以增設密封構件;在處理多水分物料時可以增設防止附著用的的襯板;對于高溫物料,則可裝備水冷套。我公司還可以根據用戶的要求生產防水型、耐熱型等機種。
昕芙旎雅核心產品:完美平衡輸送機、波動篩、振動干燥冷卻機、完美平衡篩、旋轉振動篩、線性驅動篩、小型電磁給料機、橡膠彈簧振動給料機、電磁給料機。
昕芙旎雅的振動機利用振動獨特的作用進行物料及產品的搬運,供給提供振動搬運設備。作為提高粉粒體流程作業效率的搬運裝置,形形色色的小型振動給料機,振動輸送機,振動篩,電磁給料機,振動干燥冷卻機發揮極高的作用。在食品,化學及垃圾處理廠等廣泛的領域里,昕芙旎雅作為提供振動設備的日本頂級廠家,積累著豐富的業績以及受到了相當高的評價。